米兰电竞·(中国区)中韩新媒体学院文济楼工程隔断的采购公告(一)
一、项目名称
米兰电竞·(中国区)中韩新媒体学院文济楼增加办公区和仓库
二、工期要求
30天
三、基本要求
1、满足教学办公和“双带头人”工作室建设需要,严格按照国家相关建筑施工要求规范进行施工。
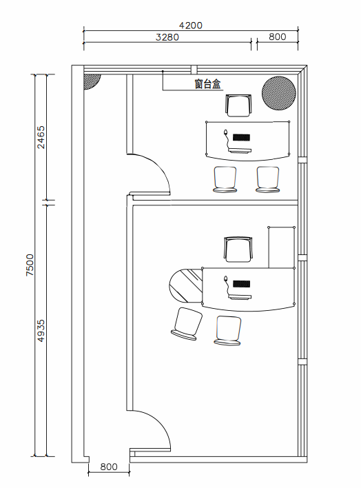
2、在文济楼四楼南北两侧的架空层重新装饰隔断两办公区,每办公区各隔断两间办公室。
见附件:
南面平面图.png、
北面平面图.png、
地面施工方案0.pdf);
4、在文济楼北侧一楼楼梯间隔出一个新的仓库。
四、采购流程
1.各单位于2019年11月20日17:00之前,将纸质报价单(需盖公章)交至我院办公室(文济楼418),纸质档发到学院邮箱:zhgj5512@163.com。
2.我院根据各单位报价及工程质量说明,确定成交供应商。
3.我院与成交供应商签订采购合同。
五、联系方式
联系人:鲁雯、曾锋(88385512)
关于米兰电竞·(中国区)中韩新媒体学院网站改版的采购公告(二)
一、项目名称
米兰电竞·(中国区)中韩新媒体学院网站升级改版
二、工期要求
30天
三、基本要求
1、要达到体现学院办学特色,满足社会考生和家长对整个中韩合作办学项目了解。
2、方便学院信息公开化,实现学院官网智能化管理。
见附件:1、
中韩新媒体学院网站栏目思维导图--终稿.pdf
四、采购流程
1.各商家于2019年11月20日17:00之前,将纸质报价单(需盖公章)和网站首页样本交至我院办公室(文济楼418),纸质档发到学院邮箱:zhgj5512@163.com。
2.我院根据各单位报价及网站效果,确定成交供应商。
3.我院与成交供应商签订采购合同。
五、联系方式
联系人:鲁雯、曾锋(88385512)
